04

Halle sportive Sainte-Trinité, Marseille

Voir les études
  • Gymnase Ste Trinite-photo soumise a droits d'auteur-MD-2
    Ce programme d’équipement sportif s’inscrit en continuité d’une première intervention de l’agence sur l’établissement Sainte Trinité à Mazargues, dans la partie basse du site à proximité du cours d'eau la Goufonne.
  • Gymnase Ste Trinite-photo soumise a droits d'auteur-MD-21
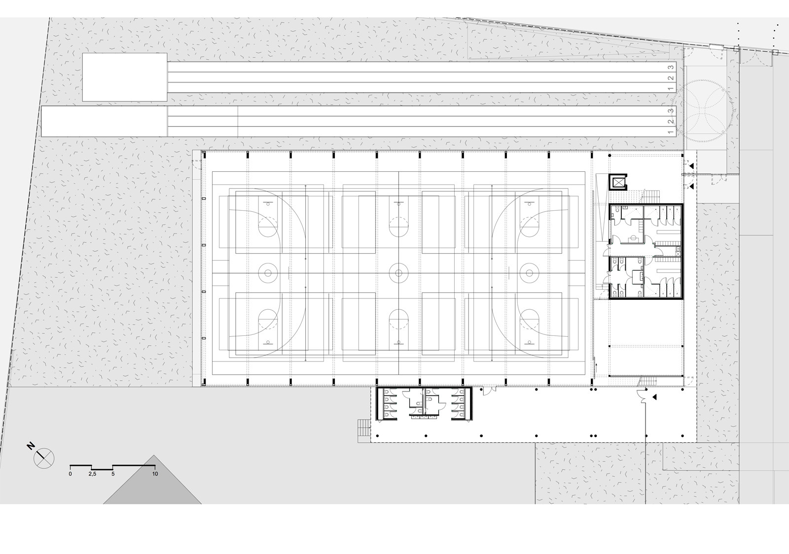
    Le terrain, impacté par le plan de prévention des risques inondation conduit à concevoir un équipement couvert ouvert, qui assure une transparence hydraulique de 75%, excepté sur une emprise limitée à 100m2.

    Un pavillon sur deux niveaux, accessible depuis l’axe principal de circulation du site, abrite un accueil à claire voie, deux blocs vestiaires en RDC et une Salle d’entrainement à l’étage. Il se réfère de façon littérale à l’expression des extensions déjà réalisées sur le site.
  • Gymnase Ste Trinite-photo soumise a droits d'auteur-MD-22
    Les lignes structurelles de dalles portées en béton brut forment support à des panneaux brise soleil ajourés. Un motif de lignes courbes entrelacées révèle la croix Trinitaire. Ils abritent les circulations et les espaces extérieurs en prolongement des principales fonctions.

    Sur la cour du collège la dalle s’élargit pour former un préau, initier une ligne qui décompose le volume de la Halle principale.

    Le profil asymétrique des ondes du bardage en partie supérieure, les lignes aléatoires d’une grille verticale pour la partie inférieure. L’ensemble métallique, laqué d’une couleur dorée, évoque les tonalités changeantes de la nature, l’écorce de platane.
  • Gymnase Ste Trinite-photo soumise a droits d'auteur-MD-16
    Cette trame verticale, se prolonge sous l’étage en porte à faux du Pavillon pour conduire à l’entrée du site depuis la Traverse de la Gouffonne.

    Un lieu de rencontre à ciel ouvert assure la transition avec l’espace public. Banc d’accueil en béton, jardin méditerranéen agrémenté de grenadiers et d’orangers, l’espace est protégé par un vélum circulaire, faisant écho au parvis réalisé sur l’Avenue de Tattre de Tassigny.
  • Gymnase Ste Trinite-photo soumise a droits d'auteur-MD-1
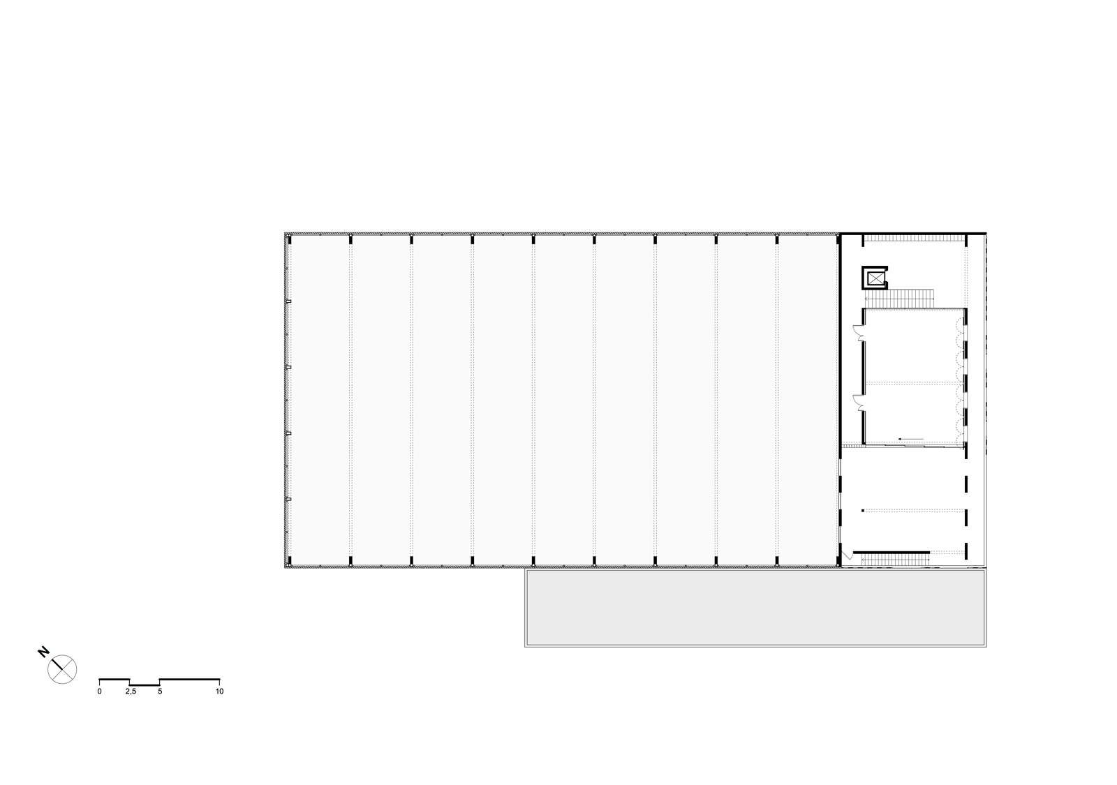
    La halle principale est conçue en ossature bois lamellée collée, recouvert d’une paroi textile en PVC Polyester, elle procure une ambiance lumineuse résolument « plein air ». La salle d’entrainement à l’étage accessible depuis la coursive est conçue de façon à s’ouvrir toute largeur sur un espace extérieur protégé d’une surface équivalente.

    L’ensemble est protégé de l’ensoleillement direct pour l’incidence la plus défavorable par les panneaux ajourés en béton de fibre.
  • Gymnase Ste Trinite-photo soumise a droits d'auteur-MD-26
  • Gymnase Ste Trinite-photo soumise a droits d'auteur-MD-25
  • Gymnase Ste Trinite-photo soumise a droits d'auteur-MD-23
  • Gymnase Ste Trinite-photo soumise a droits d'auteur-MD-14
  • Gymnase Ste Trinite-photo soumise a droits d'auteur-MD-12
  • Gymnase Ste Trinite-photo soumise a droits d'auteur-MD-10
  • Gymnase Ste Trinite-photo soumise a droits d'auteur-MD-7
  • Gymnase Ste Trinite-photo soumise a droits d'auteur-MD-9
  • Gymnase Ste Trinite-photo soumise a droits d'auteur-MD-4
  • Gymnase Ste Trinite-photo soumise a droits d'auteur-MD-20
  • Gymnase Ste Trinite-photo soumise a droits d'auteur-MD-19
  • 00 SITUATION
  • 2004 - 01-PLAN DE MASSE
  • 2004 - 02-PLAN RDC
  • 2004 - 03-PLAN R+1
  • 2004 - 04-COUPES

Halle sportive Sainte-Trinité, Marseille

Voir les études
  • Programme Construction d’une halle sportive au sein de l’institution Sainte-Trinité
  • Maître d’ouvrage Religieuses Trinitaires de Valence / OGEC Sainte Trinité
  • Maître d’œuvre Architectes : Lacube Architectes Mandataire 
    Équipe projet : Mélanie Mondoloni et Ophely Revial architectes 
    Bureau d’études tous corps d’état : EGE
    Acoustique : A2MS
  • Calendrier Consultation en cours
    Démarrage travaux : 2023
    Livraison : 2023
  • Surface 2152m2
  • Coût 2,4 M€ HT
  • Crédits photos Florence Vesval