02

Bertin Technologies, Aix-en-Provence

Voir les études
  • 2002 - 00 PLAN SITUATION-BERTIN
    BERTIN TECHNOLOGIES, présent sur Les Milles depuis 1973, développe aujourd’hui des applications dans les secteurs stratégiques, Nucléaire, Défense, Spatial et Santé. Le bâtiment d’origine, de type industriel a fait l’objet au fil des ans de multiples greffes et modifications. 

    L’opération de Déconstruction / Restructuration / Extension vise à ajuster une intervention responsable, la création de surfaces neuves aux seules entités dont le cahier des charges l’impose, les volumes existants étant inadaptés ou insuffisants : 

    Hall d’accueil, Réception/ Expédition.                                                                                      
    Salle Blanche, Aires de Stockage associées.
    Plateau de bureau paysager et salles de réunions.
  • Le hall d’accueil met en communication l’ensemble des niveaux par un vide étiré, vitré sur toute sa hauteur. Il relie les fonctions du site, offre des vues plongeantes cadrées par l’alternance de parois en béton brut et les résilles verticales d’un parement en bois clair


    Le volume de La Salle Blanche en retrait, est coiffé par un étage de bureaux paysagers ouvert sur la campagne aixoise. Il surplombe l’ensemble du site.

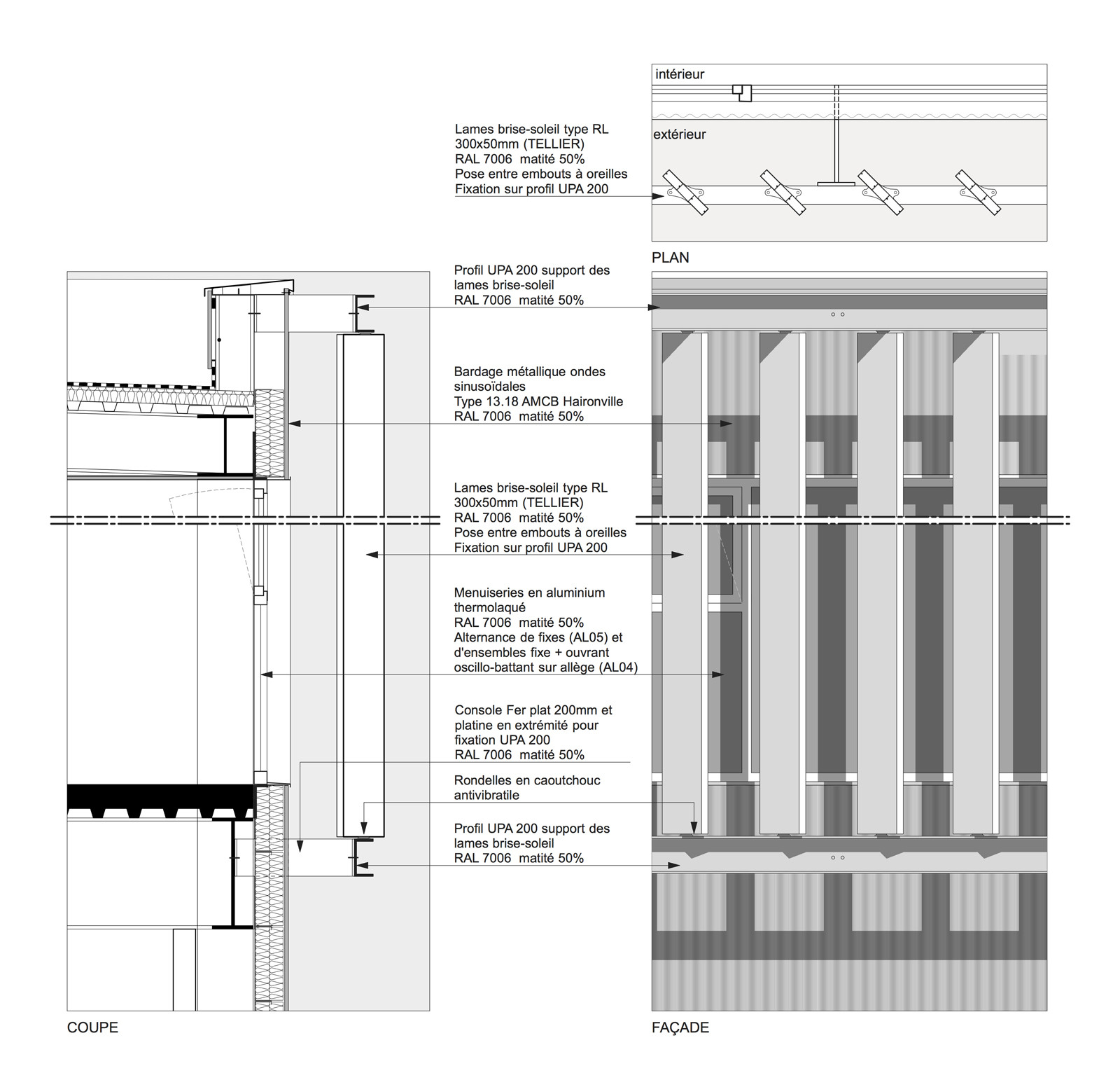
    Il amorce un glissement, intègre les bâtiments existants dans une même modénature, une nouvelle dynamique, unifie le tout par la seule expression des composants (bardage, vitrage, lames brise soleil). 

    L’empilement des niveaux est souligné par la projection de lisses filantes, profils formant support aux lames brise soleil. En alternance aux surfaces vitrées serties, les lignes verticales des ondes sinusoïdales du bardage.

    Par la précision de l’assemblage, le choix des matériaux qui le composent, le projet d’extension pour le site BERTIN TECHNOLOGIES vise à exprimer l’expertise scientifique d’une activité qu’il abrite.
  • 2002 - 01-PLAN DE MASSE PRO
  • 2002 - 06 -COUPE
  • 2002 - 07-DETAIL FACADE

Bertin Technologies, Aix-en-Provence

Voir les études
  • Programme Restructuration et extension de bureaux et salles d’activités
  • Maître d’ouvrage Bertin Technologies
  • Maître d’œuvre Architecte : Lacube architectes
    Équipe projet : Ophély Revial architecte
    Bureau d’études tous corps d’état : EGE
  • Calendrier Consultation : 2020 
    Démarrage Travaux : 2022
    Livraison : 2023
  • Surface 3975m2
  • Coût 4 M€ HT
  • Crédits photos Florence Vesval